REEXCAVANDO SIN DESTRUIR, CINCUENTA AÑOS DESPUÉS. APLICACIÓN DE NUEVOS PLANTEAMIENTOS TEÓRICOS Y METODOLOGÍAS A LA VILLA ROMANA DE BRUÑEL (QUESADA, JAÉN)
REDIGGING WITHOUT DESTROYING, FIFTY YEARS LATER. APPLYING NEW THEORIES AND METHODS TO THE ROMAN VILLA OF BRUÑEL (QUESADA, JAÉN)
Julio RAMOS NOGUERA*
Resumen
El presente artículo versa sobre el mundo rural romano, y en concreto retoma la investigación de uno de los yacimientos más significativos de la Península Ibérica, el conocido como la Villa Romana de Bruñel (Quesada, Jaén). Dicha entidad constituye un magnífico conjunto arqueológico de gran valor histórico, olvidado con el paso del tiempo, donde se ha podido constatar una presencia ibérica que se remonta al siglo IV a.C. y una posterior ocupación romana, la cual se extiende desde el siglo II d.C. al IV d.C., y que se materializa en un tipo de entidad constructiva concreta, la uilla.
Palabras Claves
Arqueología clásica, Bruñel, mundo rural, uilla, arquitectura rural.
Abstract
The present article introduces the reader to the rural roman world and it specifically resumes the investigation of one of the most significant sites of the Iberian Peninsula, known as the roman uilla of Bruñel (Quesada, Jaén). This entity constitutes a magnificent archeological ensemble of great historic value that has been forgotten with time´s passing. It is here where it has been possible to verify an Iberian presence that goes back to the fourth century B.C. and a later roman occupation that stretches on from the second century A.D. to the fourth century A.D. and that materializes into a different type of constructive unit, the uilla.
Key Words
Classic archeology, Bruñel, rural world, uilla, rural architecture.
INTRODUCIÓN. OBJETIVOS Y METODOLOGÍA
Nuestra intención general con este ensayo es suscitar el interés por el mundo rural romano a través del sugerente y particular estudio de la uilla romana de Bruñel (Quesada, Jaén), un yacimiento dotado de un gran potencial arqueológico y aparentemente relegado de su valor original. Para lograr este propósito se han diseñado una serie de objetivos específicos afines a las necesidades de la investigación, y que a continuación exponemos: revisión e interpretación de las distintas fuentes documentales existentes acerca del yacimiento de Bruñel y adaptación de sus contenidos a los nuevos métodos de investigación y técnicas de análisis arqueológico; comprensión de los procesos de desarrollo en la arquitectura rural de Bruñel para determinar la adaptación de sus espacios a los distintos periodos históricos; planteamiento de nuevas hipótesis para el avance en la investigación sobre el desarrollo de la uilla de Bruñel; actualización planimétrica del conjunto arqueológico, con el fin de aportar un potente aparato gráfico al trabajo y facilitar la comprensión del estudio realizado; desarrollo de la investigación como un primer acercamiento a la uilla romana de Bruñel para acometer una futura Tesis Doctoral.
Quisiéramos recalcar que el presente estudio se sitúa dentro de una tendencia científica concreta, la referida a la revisión de la historiografía arqueológica española. A grandes rasgos, esta línea de investigación trataría de la reinterpretación, con nuevos planteamientos teórico-metodológicos más ajustados al método arqueológico actual, de excavaciones y/o publicaciones antiguas, en este caso, referentes al yacimiento de Bruñel, que pudieran encerrar aún hoy día aspectos de interés que permitieran ser reinterpretados bajo los nuevos presupuestos científicos. Esta tendencia, en gran medida, nos permite alcanzar interpretaciones contemporáneas sobre viejos problemas arqueológicos, que pueden llevar, incluso, a la reanudación de líneas de investigación que se creían agotadas.
Con el fin de estructurar nuestra investigación, hemos ideado una metodología de trabajo específica capaz de abordar los objetivos planteados anteriormente. La primera fase de nuestra labor se basó en la adquisición y procesado de toda la información disponible que diera testimonio sobre al propio yacimiento de Bruñel y su entorno más cercano. Han sido fundamentales las fuentes de carácter histórico, geológico y paisajístico, y teniendo, también, muy presentes las distintas fuentes de esencia arqueológica, fruto de las diversas intervenciones que se han llegado a realizar sobre el lugar de estudio en cuestión, a fin de favorecer su revisión e interpretación. Señalar que el privilegiado acceso a algunas de las memorias y notas de excavación originales, la gran mayoría inéditas, han enriquecido en gran medida este estudio. Del mismo modo, el trabajo de campo ha constituido una herramienta fundamental, no solamente para materializar todas aquellas ideas que los distintos arqueólogos que intervinieron en el yacimiento plantearon en su momento, sino que también ha favorecido el desarrollo de nuevas propuestas interpretativas. Ciertamente, la relevancia de nuestro estudio ha permitido ofrecer una renovada visión del conjunto arquitectónico de Bruñel, desencadenando toda una serie de innovadoras hipótesis.
Una vez asentadas nuestras percepciones y redefinidas las distintas teorías acerca del conjunto de Bruñel, procedimos a la elaboración de unas buenas planimetrías, generales y específicas, del lugar. Para ello, decidimos actualizar y redefinir los escasos planos y bocetos encontrados sobre las distintas entidades estructurales documentadas en Bruñel, a fin de confeccionar una planimetría definitiva del yacimiento, en su estado actual de conocimiento. Como veremos, se ha rediseñado en formato CAD la realidad arquitectónica del complejo arqueológico, distinguiendo las tres fases constructivas que presenta la uilla y asignando nuevas referencias a cada una de las unidades espaciales que conforma el yacimiento.
LA VILLA ROMANA DE BRUÑEL Y SU CONTEXTO
La uilla romana de Bruñel se encuentra emplazada en el llamado “Cortijo Plaza de Armas” del Pago de Bruñel Bajo, dentro del término municipal de Quesada, en la provincia de Jaén. El yacimiento aparece situado entre las localidades de Peal de Becerro y Quesada, concretamente en el kilómetro 28 de la carretera comarcal C-323 que va de Villacarrillo hasta Huércal Overa (fig. 1). Es en ese punto exacto, en el llamado Cortijo de las Canteras, desde donde arranca una vía secundaria conocida como “Camino de Bruñel” que conduce, en sentido ascendente, hacia el propio yacimiento (MUÑOZ JOFRÉ 1995:16).
Fig. 1. Ubicación del yacimiento de Bruñel (SOTOMAYOR 1985:336)
Es importante llegar a comprender que el lugar en el que se levanta cualquier tipo de entidad constructiva no es una cuestión que deba de menospreciarse, ni tomarse a la ligera. Las sociedades antiguas, y en concreto los romanos, eran totalmente conscientes de las necesidades que debía reunir cada tipo de emplazamiento arquitectónico, con el objetivo de convertir ese espacio en un lugar óptimo a fin a sus funcionalidades (ACKERMAN, S. 1997). A grandes rasgos, los factores más significativos que determinan la elección de un lugar para la posterior construcción de una entidad arquitectónica concreta son: los factores físicos, condicionantes que inciden directamente sobre el medio ambiente; los factores geopolíticos (político-legal, militar-estratégico y comunicación) y los factores religiosos (ceremonial) (MORENO ALCAIDE 2013:325-326). En nuestro caso, abordaremos los dos primeros factores citados; fundamentalmente, debido a la carencia de evidencias religiosas concluyentes en el área de estudio que nos ocupa.
El yacimiento de Bruñel constituye un ejemplo referencial dentro del ámbito paisajístico, puesto que tanto su ubicación, como su orientación responden favorablemente a los condicionantes básicos que toda entidad constructiva con las características de una uilla debería acoger, según indican los agrónomos clásicos más representativos (Catón, Varrón y Columela) en sus respectivos tratados. De forma más precisa, el conjunto arqueológico se encuentra emplazado sobre un cerro de poca altura, a unos 640 metros sobre el nivel del mar. La complejidad paisajística del entorno constituye una realidad evidente, y es uno de los aspectos más destacables de este espacio natural que abordamos. Como podemos observar en la imagen (fig. 2), alrededor del promontorio existen toda una serie de agentes naturales que dotan al lugar de una gran riqueza paisajística: como vemos, al E del cerro se extiende la Sierra de Cazorla; al SO se localiza la denominada Sierra de Quesada; mientras que en el resto de las orientaciones se divisa un paisaje característico de crestas y ondulaciones formado por la existencia de una estructura tectónica de fallas y pliegues propia de esta zona septentrional de las cordilleras béticas (GARCÍA HERNÁNDEZ 1985:115; MUÑOZ JOFRÉ 1995:23). Hablamos de unas entidades naturales que muy probablemente llegaron a marcar el emplazamiento definitivo del yacimiento de Bruñel, proporcionando un cierto grado estratégico al complejo.
Fig. 2. Entorno natural del yacimiento de Bruñel (Mapa físico de la provincia de Jaén 2009)
A nivel hidrográfico, a unos 40 m por debajo de la falda N del cerro, se encuentra el llamado Arroyo de Bruñel; un afluente del Guadalquivir, de caudal regular, que corre en dirección E-O. La presencia y disponibilidad de un curso hidrográfico próximo al asentamiento indica, claramente, una vez más, el premeditado emplazamiento del conjunto rural. Así pues, teniendo en mente su esencialidad para el desarrollo de la vida, este afluente proporcionaría abundante agua potable para el consumo humano, así como para el mantenimiento del ganado, en caso de tenerlo, y para el regadío de los cultivos. En este sentido, consideramos que el sistema de retención y conducción de las aguas jugó un papel muy importante en Bruñel, como demuestran las evidencias de canalizaciones y depósitos varios identificados entre las estructuras de la uilla; un ámbito muy poco tratado en los estudios realizados hasta el momento sobre el propio yacimiento y cuya investigación está pendiente.
En cuanto a la topografía del lugar, el cerro presenta un evidente desnivel respecto a su entorno, evitando el peligro de inundaciones y posibles conmociones de los cimientos que conformaban el conjunto estructural (MUÑOZ JOFRÉ 1995:26). En este ámbito, quisiéramos señalar que hemos elaborado una planimetría (fig. 3), sobre la base de anteriores estudios topográficos realizados en el lugar, en la que se recogen los distintos desniveles superficiales que presenta el cerro y el emplazamiento concreto del yacimiento, con todas sus fases constructivas, a fin de dar a entender más gráficamente la realidad que describimos. Por otro lado, desde el punto de vista geológico, los estudios realizados por el Instituto Tecnológico GeoMinero de España indican que la naturaleza de los suelos de esta zona está, principalmente, formados por dolomías, calizas del Cretácico superior-Eoceno medio y margas blancas del Terciario. La abundante presencia de piedra caliza en la zona nos lleva a plantear su posible aprovechamiento como elemento básico de construcción.

Fig. 3. Planta número 5. Planimetría de la villa y topografía.
Respecto a la vegetación, el flanco E del cerro (zona correspondiente a la serranía de Cazorla) presentaría grandes y frondosas zonas boscosas, en especial encinas, pinares y sabinares, que proporcionarían abundante madera no solo para la construcción arquitectónica, sino también para la fabricación de aperos de labranza y otros utensilios domésticos, además de su uso como elemento de combustión (VALLE 1985:113-128; MUÑOZ JOFRÉ 1995:27-28). Evidentemente, la uilla dispondría de un entorno bastante fértil, apto para desempeñar funciones agropecuarias con suficiente rentabilidad. Además, debían existir grandes zonas de pastos húmedos, que se relacionarían con esas zonas boscosas de la serranía de Cazorla y que justificarían esa fase última de la uilla en la que dichas actividades son bien evidentes en el contexto material metálico recuperado. Insistimos, pues, en que la elección de este medio natural para la edificación del complejo rural, guarda una serie de razones que pretenden favorecer la funcionalidad del mismo.
Dentro de los factores geopolíticos, uno de los aspectos a destacar es la proximidad que existe entre el propio yacimiento y la antigua ciudad de Tugia, lo que nos hace plantear la posibilidad de que existiera una especial relación entre Bruñel y dicha ciudad, sin descartar un cierto grado de dependencia por parte de la uilla hacia el referido núcleo urbano. Es importante, también, hacer mención a las vías de comunicación que existían en las cercanías de la uilla. Sobre la base de los estudios realizados acerca de las vías terrestres en Hispania, y más concretamente, atendiendo a los trabajos de los investigadores P. Sillieres (1990:383-502) y González Román (1995), observamos que la uilla de Bruñel se localiza en una ramificación de la Via Augustea, trayecto que comunicaba el territorio de Hispania con Roma. Concretamente, observamos cómo el trayecto hasta la uilla, por el flanco oriental de la Península Ibérica, iba desde la ciudad de Carthago Nova hasta la ciudad de Acci; desde aquí la vía se extendía hacia el interior de la península, en dirección a Tugia (Toya) y poco antes de llegar a esta última ciudad se situaría una bifurcación parcialmente documentada en dirección a Bruñel. Hablamos de parcialidad, puesto que dicho camino secundario que daba acceso directo a la uilla no ha sido documentado en su integridad; sin embargo, durante nuestras visitas al yacimiento, creemos haber hallado restos de lo que podría ser la calzada empedrada, justo en la senda que asciende el cerro hasta el yacimiento. No obstante, el acceso a la uilla también podía efectuarse desde otro ramal, a partir de Cástulo (Linares) y pasando por Tugia (Toya) para llegar a Acci (Guadix) y Bastí (Baza) (FORNELL MUÑOZ 1996: 125-130). Con estos datos pretendemos hacer ver que la uilla de Bruñel se encontraba integrada en la red de calzadas romanas, y que por tanto, participaba de esa comunicación cultural y comercial con el mundo puramente urbano. Por otra parte, dentro este mismo ámbito, otro aspecto importante respecto a las vías estratégicas, es la cercanía, a través del afluente que anteriormente hemos citado, al río Guadalquivir, la vía de comunicación más destacada de toda Andalucía, y en todas las épocas históricas. Y aún más, en época romana, respecto a la cual se sitúan todas las grandes ciudades de la Bética (Corduba, Hispalis, Astigi).
LA VILLA ROMANA DE BRUÑEL Y SUS FASES CONSTRUCTIVAS
Uno de los problemas generales que plantea el estudio de las uillae y de sus transformaciones morfológicas es el referido a la cronología. Hasta hace pocos años no estaba generalizado en la Península Ibérica el método de excavación estratigráfico, por lo que muchas de las dataciones propuestas para las distintas fases de algunos yacimientos son vistas, a día de hoy, como poco precisas (CHAVARRÍA ARNAU 2007:85; RIPOLL Y ARCE 2001:22).
En el caso de Bruñel, los trabajos arqueológicos desarrollados entre los años 1965 y 1971, en los que participaron una gran número de importantes arqueólogos, como R. del Nido, M. Ríu, A. Arribas o M. Sotomayor, llegaron a distinguir tres claras fases de carácter constructivo en la uilla romana; aunque también es cierto que las dataciones otorgadas a cada una de ellas pueden ser calificadas de estimativas y no concluyentes, ya que el estudio de materiales que se realizó para contextualizar el yacimiento fue mínimo y muy poco fiable. Es por ello por lo que desde un principio hemos pretendido revisar toda la documentación existente acerca de este particular matiz del asentamiento rural, a fin de corroborar las tradicionales teorías que se han lanzado sobre Bruñel y poder comprender mejor toda su evolución arquitectónica. Ciertamente, este conjunto arqueológico es un notable testimonio de varios siglos de nuestro pasado. Sobre una fase ibérica, parcialmente atestiguada por una necrópolis con cerámica típica del horizonte cultural, se alzan ciertas fases de ocupación pertenecientes al mundo romano. Como podemos observar en la planimetría general del yacimiento (fig. 4), tres son las fases constructivas que tradicionalmente se han definido en esta uilla, correspondiendo a los siglos II, III y IV d.C. No obstante, sobre la base de nuestra investigación, consideramos que la realidad estructural de la uilla es algo más compleja que la descrita hasta la fecha, no descartando la existencia de alguna fase histórico-constructiva más sin detectar, posiblemente asociada al periodo Tardoantiguo o Altomedieval.
Fig. 4. Planta número 1. Planimetría general de la villa.
A continuación procederemos a analizar los rasgos más característicos de cada una de las fases constructivas documentadas en Bruñel. Además, para favorecer esta labor, incorporamos al ensayo toda una serie de planimetrías propias sobre la uilla, en las que se pueden apreciar nuestra particular estructuración del yacimiento.
Fase I
De los tres ciclos constructivos que se distinguen en la uilla romana de Bruñel, la primera, y más temprana, se corresponde con la menos indagada por los estudios arqueológicos. En planta (fig. 5), podemos observar que se trata de un área conformada por toda una serie de vestigios constructivos, cuya datación, establecida a partir de los materiales hallados en el área en cuestión, se fecha en el siglo II d.C. Dicho conjunto arquitectónico se encuentra aún visible fuera del límite de la zona acotada del yacimiento, al O de la uilla de II y III fase. En nuestra planimetría, debido al alto grado de desconocimiento que existe acerca de este complejo estructural, hemos decidido identificar todos los vestigios estructurales de la primera fase de forma conjunta, refiriéndonos a esta agrupación arquitectónica como área I. Es importante tener en cuenta que, hasta el momento, estas edificaciones aparecen aisladas unas de otras, silenciando cualquier tipo de ritmo constructivo apreciable por el ojo humano.
Fig. 5. Planta número 2. Planimetría Fase I.
Dentro de esta fase inicial de la uilla, uno de los espacios arquitectónicos más bien definidos, a nivel estructural, se corresponde a un edificio de planta cruciforme irregular, el cual, en sintonía con el resto del área I, ha sido parcialmente excavado. Cabe destacar el hallazgo, en su interior, de ciertos restos de estuco asociados a un periodo tardío, algo semejantes a los hallados en la uilla de tercera fase; así como ánforas; dólias y tégulas. La presencia de elementos materiales asociados a una época tardía hace suponer, así pues, que dicha fase pudo haber estado en funcionamiento hasta el siglo IV d.C. Por otra parte, al O del edificio de planta cruciforme irregular encontramos los restos de cuatro contrafuertes, colocados en sentido N-S, que por su disposición espacial creemos que podrían estar relacionados con el edificio anterior.
Al margen de estas dos estructuras, y aparentemente sin relación física entre ellas, se documenta al S una construcción rectangular identificada como una posible cisterna por el tipo de revestimiento en cal que presenta. Además, perteneciente, también, a esta primera fase de la uilla, se constatan los restos de una construcción semicircular situada en el interior el gran patio o corral (perteneciente a la tercera fase de la uilla), como se puede observar en la planimetría general del lugar (fig. 4). Este hecho, una vez más, podría evidenciar la continuidad funcional de la fase I (siglo II d.C.) durante el siglo IV d.C.
La continuidad funcional de esta primera fase (siglo. II d.C.) durante la segunda y tercera (siglos III y IV d.C.), se ha convertido en una de las cuestiones a la que más importancia hemos atribuido en nuestras reflexiones sobre dicho ciclo constructivo de la uilla. Indicios, como la presencia de materiales tardíos en el área I, así como el emplazamiento, nada improvisado, desde nuestro punto de vista, de los restos de la construcción semicircular situada dentro del gran patio o corral, son algunos de los pilares que sustentan nuestra hipótesis. No obstante, somos consciente de la falta de pruebas de las que disponemos, por lo que, con futuras investigaciones, pretendemos seguir indagando sobre este aspecto.
Fase II
La segunda fase de la uilla fue la primera área documentada arqueológicamente en el propio yacimiento de Bruñel, a través de la localización fortuita de ciertos restos de mosaicos que florecían sobre el suelo natural del recinto. Tradicionalmente se ha asignado a este segundo periodo constructivo una cronología un tanto acotada por las dataciones asignadas tanto a la primera fase de la uilla (siglo II d.C.) como a la tercera (siglo IV d.C), fase que físicamente se superpone, parcialmente, a la segunda. Así pues, la consideración de estos límites cronológicos, junto con el estudio de los diversos mosaicos encontrados en las distintas habitaciones que conforman la segunda fase de uilla, hace que se le asigne a este momento constructivo una datación aproximativa de entre el siglo III d.C. y principios del siglo IV d.C.
Desde una visión general del conjunto (fig. 6), podemos decir que los restos estructurales conservados para esta segunda fase pertenecen a una uilla ricamente decorada (gran variedad de pavimentos con mosaicos y presencia de paredes estucadas), en la que se conserva un atrio con impluvium (ambiente II.1), así como el peristilo de la uilla (área II.2) rodeado de toda una serie de estancias variadas; concretamente, en el flanco N del peristilo encontramos tres habitaciones que comunican directamente con su corredor (II.6, II.7 y II.8); otras cuatro en el lado E (II.9, II.10, II.11 y II.12), tres al S (II.21, II.22 y II.23); y finalmente cuatro al O (II.15, II.16, II.17 y II.18). Estas, como decimos, son las distintas habitaciones en conexión con el corredor del peristilo. Sin embargo, también existen otros ambientes, pertenecientes a la segunda fase de la uilla, que no están asociados directamente con dicha área central: localizamos cuatro estancias al N (II.1, II.3, II.4 y II.5); dos al E (II.13 y II.14); y otra al O (II.20). Hablamos, en definitiva, de un complejo originalmente residencial, con un carácter fastuoso (DEL NIDO 1965; 1966:205-206; y 1967).
Fig. 6. Planta número 3. Planimetría Fase II.
Fase III
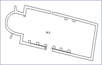
Tras algo más de un siglo, la uilla romana de Bruñel experimentó un importante cambio general, que supuso su completa reestructuración y el inicio de un nuevo ciclo. Aunque a día de hoy no podemos concluir de forma precisa el momento exacto en el que tuvo lugar este fenómeno, las evidencias materiales parecen indicar que fue a mediados del siglo IV d. C. cuando se produjo dicha eventualidad. A grandes rasgos, esta tercera fase constructiva se asocia a lo que hemos considerado como una remodelación estructural y funcional de la uilla de segunda fase (siglo III d.C.). Hablamos de una etapa en la que la monumentalidad cobra un fuerte protagonismo; siendo por lo general, el carácter más preponderante. Sin embargo, resulta curioso el hecho de que su ejecución no se llevara a cabo de forma marginal respecto a la fase anterior, sino que, por el contrario, se optó por la destrucción y alteración parcial de la uilla del siglo III para confeccionar una nueva entidad constructiva.
No obstante, además de la significativa monumentalización estructural que adquiere la uilla en esta nueva fase, a nivel funcional también se pueden percibir ciertos cambios trascendentales. Una de las evidencias más interesantes que se han podido documentar con esta reforma es el hecho de que el complejo, a partir del cambio, parece adoptar un carácter más ligado a la esencia rural, perdiendo esa entidad señorial que tanto la caracterizaba en el pasado, y reflejando una nueva realidad muy distinta a la de la fase anterior. En cuanto a su magnitud, la extensión de la nueva edificación, en su conjunto, llega a ocupar, aproximadamente, el doble del espacio de la anterior uilla. Ciertamente, hablamos de un importante complejo constructivo que comprende una llamativa aula con ábsides contrapuestos, así como un inmenso patio contiguo rodeado por distintas estancias o almacenes y una nueva área presidida por un peristilo y bordeada por distintas habitaciones contiguas (fig. 7).
Fig. 7. Planta número 4. Planimetría Fase III.
Como ya hemos adelantado, en el área más septentrional de la uilla de tercera fase, nos encontramos con la llamada gran aula de ábsides contrapuestos (área III.1), uno de los espacios constructivos más interesantes de todo el conjunto arqueológico de Bruñel, debido a la gran cantidad de incógnitas, aun por despejar, que genera. Este espacio arquitectónico aparece situado al norte de la uilla de fase III y se construye sobre parte de los cimientos de la fase II, arrasando con ciertas áreas constructivas de esta (II.11, II.12, II.13, II.14, II.15, II.16 y la mitad del área II.2). La gran aula presenta dos puntos de acceso, uno al N y otro al S. No obstante, cabe destacar que la puerta N de dicho recinto parece alinearse con la zona central del peristilo de la uilla del siglo III d. C. (fase II), lo que nos lleva a deducir que su ubicación no debió de ser casual (fig. 7). De hecho, no descartamos la posibilidad de que dicha puerta constituyese una conexión directa entre la uilla del siglo IV d.C. y la uilla del siglo III d.C., demostrando que la edificación del nuevo complejo no supuso el total abandono y desuso de la uilla anterior.
Por otra parte, algunos investigadores, como es el caso de Sotomayor, defienden la idea de que esta gran estructura fue concebida en una única etapa o fase constructiva (SOTOMAYOR 1985:356); sin embargo, nuestros estudios tratan de afirmar lo contrario, defendiendo la existencia de, al menos, dos fases constructivas distintas dentro de dicha singular edificación: la fase A (fig. 8), la original, donde el aula presentaría una única cabecera (cabecera O); y una posterior fase constructiva, la fase B (fig. 9), en la que se añadiría un nuevo ábside al complejo (cabecera E), junto con la edificación del aula absidial (III.3) anexa al muro S de la gran aula.
Fig. 8. Fase A de la gran aula. Bruñel.
Fig. 9. Fase B de la gran aula. Bruñel.
En cuanto a la funcionalidad del lugar, no exageramos cuando decimos que nos encontramos ante una de las mayores incógnitas que encierra el yacimiento de Bruñel, debido, básicamente, a la carencia de pruebas concluyentes que nos permitan determinar el uso del lugar. Desde el punto de vista arquitectónico, en un primer momento, las amplias dimensiones del complejo biabsidal, junto con las particulares características de su planta, hicieron pensar que esta sala debió acoger una importante funcionalidad. De hecho, su planta y orientación, en particular, fueron dos de los argumentos que hicieron creer que se trataba de una basílica paleocristiana; una teoría que, a su vez, parecía corroborarse con la posible vinculación de la gran aula de ábsides contrapuestos con el aula absidiada (III.3) anexa al muro S, y concebida, esta última, como un posible baptisterio. Sin embargo, la falta de atributos religiosos, como son la ausencia de enterramientos y sepulturas en el interior del recinto y alrededores; la inexistencia de elementos de culto, como altares, canceles o, en la estancia anexa, una pila bautismal; y la pobreza de sus elementos decorativos; junto la presencia en el aula de cencerros y aperos de cultivos (RÍU 1982:95) y el encuadre perfecto del aula en el conjunto de las estructuras (Memoria inédita de la 5ª campaña de excavación en la uilla romana de Bruñel, 1969), hicieron que esta teoría fuera en gran medida descartada. No obstante, aunque bien es cierto que estos hallazgos alejan considerablemente la idea de que el insinuado recinto adoptara una función cultual, no creemos que constituyan un argumento determinante para deducir la funcionalidad original del edificio.
Verdaderamente, no podemos negar la gran dificultad que supone entender cómo un espacio arquitectónico tan elaborado, a nivel estructural, como éste, pudiese ser dedicado únicamente a espacio de almacenaje o lugar de estancia para el ganado. Con ello, no pretendemos descartar el uso del aula biabsidal como espacio de funcionalidad rústica en algún momento de su existencia, ya que las evidencias materiales halladas en su interior parecen corroborar dicha afirmación; pero sí queremos plantear la posibilidad de que ese uso plenamente rural no corresponda con la realidad funcional general del edificio, sino que pudiera ser una competencia asignada al complejo constructivo en un momento concreto, posiblemente ligado a una fase final de la vida en la uilla o incluso que pudiera haber sido dada tras su posterior abandono, con la intención de reaprovechar los distintos espacios constructivos.
En cuanto al llamado gran patio o corral (III.2), decir que se trata de un espacio arquitectónico, también perteneciente a la fase III de la uilla, de planta rectangular, donde nuevamente se refleja con claridad el fuerte carácter monumental que adopta la uilla en el siglo IV d.C. Dicho patio, cuenta a su vez con cuatro importantes corredores distribuidos en cada uno de sus lados, bordeando por completo la planta del recinto, y desde los cuales se puede acceder a los distintos ambientes ubicados alrededor del mismo. Respecto al uso de este espacio, la teoría más consensuada expone que este recinto pudo servir como espacio de corral para el ganado. De hecho, son varias las evidencias arqueológicas que parecen justificar esta hipótesis: en primer lugar, cabe destacar la presencia de un único y reducido punto de acceso al interior del recinto (situado en el muro S del gran patio), lo cual podría evidenciar un intento por mantener controlado al ganado; el hallazgo de diversos objetos vinculados con el sector ganadero en esta área, como es el caso de los cencerros de metal, constituye también un argumento de peso para concebir el gran patio como un corral; por otra parte, la ausencia de restos que demuestren la presencia de fuentes, jardines o cualquier tipo pavimentación u ornamentación aumenta la veracidad de esta afirmación. Sin embargo, de forma contradictoria, también existen una serie de argumentos que, más que aportar una nueva visión al conjunto estructural, ponen en duda el uso del patio como espacio de corral, como por ejemplo la presencia de pinturas murales en los pasillos circundantes o la abundante aparición de vajilla de mesa (sigillata africana D) que aparece en esta zona, típica de un ambiente urbano y no rústico; precisar que con el término urbano hacemos referencia a que se ajusta más a un ambiente doméstico de la pars urbana, zona donde reside el dominus y su familia, que usaría dicha vajilla, que con un ambiente donde se desarrollan actividades agropecuarias.
Siguiendo con el orden del análisis espacial establecido, al E del complejo constructivo que conforma el gran patio o corral, junto con sus respectivos corredores y estancias que lo bordean, nos encontramos con un nueva zona de características específicas, la cual ha sido concebida como la pars urbana o zona residencial de la uilla del siglo IV d.C. Dicho espacio residencial aparece en conexión directa con el resto de la uilla, concretamente con la zona del patio-corral, a través del corredor o pasillo III.8 (situado al E del patio-corredor central). Se trata de un espacio con un nuevo peristilo, formado por un jardín o patio central de 8 m de largo por 6 m de ancho, que preside el área, junto con una serie de corredores anexos (cuatro en concreto) que dan acceso a las distintas habitaciones o estancias distribuidas a su alrededor (III.17, III.18, III.19, III.20, III.21, III.22, III.23, III.24, III.25, III.26, III.27 Y III.28).
Dentro de la uilla de tercera fase, nos queda, finalmente, por comentar una de las áreas menos indagadas de todo el complejo estructural documentado en Bruñel. Se trata de un conjunto de muros, evidenciados parcialmente, ubicados al N del sector del nuevo peristilo, y al E de la gran aula de ábsides contrapuestos y las estancias III.3 y III.4. Según los datos que nos aportan las notas publicadas sobre este sector, en este espacio se documentaron varios muros pertenecientes a diversas fases. Destaca la existencia de un nivel prerromano, en el que se hallaron abundantes restos de cerámica ibérica y algunas vasijas con función de urnas funerarias, sepultadas en pequeñas concavidades en la greda (SOTOMAYOR 1985:353). Ciertamente, la funcionalidad de esta entidad constructiva es totalmente desconocida a día de hoy. Por ello, hemos decidido, provisionalmente, agrupar todo este conjunto de estructuras bajo una misma referencia, la denominada área III.29; a la espera de la puesta en marcha de una nueva campaña arqueológica que nos permita entender el papel que esta área jugó para la uilla de tercera fase; y nos determine el carácter de la fase de asentamiento anterior a la llegada de los romanos.
CONCLUSIONES
El presente estudio pretende reflejar la gran complejidad que encierra el mundo rural romano y, en concreto, el modelo de la uilla romana. Nuestro interés hacia dicha temática nos ha conducido al análisis de un caso arqueológico en particular conocido como uilla romana de Bruñel, el cual se ha visto restringido desde el momento de su hallazgo por los principios tradicionalistas de la metodología arqueológica, a la espera de una actualización interpretativa que permita recuperar el auténtico valor histórico-arqueológico del lugar. Es a partir de nuestro trabajo de investigación, observando las distintas carencias que afectaron los trabajos arqueológicos realizados previamente en Bruñel, cuando comenzamos a cuestionar el estado interpretativo del yacimiento, llegando a la conclusión de que la realidad arquitectónica y funcional del conjunto rural pudiere ser algo más compleja que la defendida desde un comienzo.
No obstante, somos conscientes del gran esfuerzo que supone la elaboración de un discurso histórico en torno a las uillae, partiendo de los limitados y en muchos casos fragmentados vestigios materiales que han logrado conservarse a lo largo del tiempo. Por esta razón, es conveniente que el investigador adquiera un fuerte compromiso moral y social en su trabajo, desligándose de cualquier tipo de argumento especulativo refutable que pueda obstaculizar el desarrollo de la investigación. No debemos olvidar nunca que nuestra tarea como historiadores es reconstruir la realidad pasada, no construir un pasado sobre la base de nuestra percepción de la realidad. Estamos convencidos de que Bruñel constituye un yacimiento histórico-arqueológico de gran relevancia a nivel del área bética y sabemos que aún queda mucho trabajo pendiente por acometer, el cual, nos permitirá alcanzar un mejor conocimiento de este significativo conjunto cultural.
AGRADECIMIENTOS
Quisiera reflejar mi más sincero agradecimiento, por la colaboración, dedicación y esfuerzo prestado a toda una serie de personas que han contribuido a la elaboración de esta investigación:
A mis directores de TFM, la Dra. María Isabel Fernández García, mi iniciadora en el mundo de la investigación histórico-arqueológica, el Dr. Julio Miguel Román Punzón, al que le debo haberme ofrecido este apasionado tema de estudio y el haber compartido conmigo buena parte su experiencia profesional en el campo de la arqueología; y a mi tutor, el Dr. Manuel Moreno Alcaide, contribuidor, desde un principio, en mi formación académica y fuente de beneficiosas aportaciones. A todos ellos les agradezco sus útiles consejos y constante apoyo.
Al Departamento de Prehistoria y Arqueología de la Universidad de Granada por las distintas facilidades otorgadas durante la realización de este trabajo de investigación.
BIBLIOGRAFÍA
ACKERMAN, S. J. (1997): La villa. Formas e ideología de las casas de campo. Trad. Isabel Balsinde. Akal, Madrid.
CHAVARRÍA ARNAU, A. (2007): El final de las villae en Hispania (siglos IV-VII d.C.). Bibliothèque de l’antiquité tardive. Publiée par l’association pour l’antiquité tardive. Brepols Publishers, nº 7.
DEL NIDO, R. (1966): “Edificaciones romanas en el cortijo Plaza de Armas del Pago de Bruñel”. Noticiario Arqueológico Hispano VIII-IX. Cuadernos 1-3 (1964-1965), Madrid, pp. 203-209
DEL NIDO, R. (1965): Memoria inédita de la 1ª campaña de excavación en la uilla romana de Bruñel.
DEL NIDO, R. (1966): Memoria inédita de la 2ª campaña de excavación en la uilla romana de Bruñel.
DEL NIDO, R. (1967): Memoria inédita de la 4ª campaña de excavación en la uilla romana de Bruñel.
FORNELL MUÑOZ, A. (1996): “Las vías romanas entre Castulo y Acci”. Florentia Iliberritana. Revista de estudios de antigüedad clásica, nº 7, pp. 125-140.
GARCÍA HERNANDEZ, M. (1985): Geología del Macizo Segura-Cazorla. Anuario del adelantamiento de Cazorla 26/7, pág. 115.
GONZÁLEZ ROMÁN, C. (1995): El esplendor de la España romana. El Alto Imperio de la Península Ibérica. Ed. Historia 16, Madrid.
MORENO ALCAIDE, M. (2013): Condicionantes para la fundación de la colonia latina de Cosa. Aproximación desde los factores físicos, geopolíticos y religiosos para la elección del emplazamiento. Cuadernos de prehistoria y arqueología, nº 23, Universidad de Granada, Granada, pp. 323-346.
MUÑOZ JOFRÉ, L. (1995): Elementos ornamentales de la Villa romana de Bruñel. Departamento de Prehistoria y Arqueología. Universidad de Granada, Granada.
RIPOLL, G.; ARCE, J. (2001): “Transformación y final de las villae en Occidente (siglos IV-VIII). Problemas y perspectivas”. Arqueología y territorio medieval, nº 8, pp. 21-54.
RÍU, M. (1982): Nuevos temas de arqueología medieval andaluza. Estudios de Historia y de Arqueología Medievales. Cádiz, pp. 93-96.
SILLIÈRES, P. (1990): Les voies de communication de l’Hispanie méridionale. Diffusion de Boccard, Paris.
SOTOMAYOR MURO, M. (1985): “La villa romana de Bruñel, en Quesada (Jaén)”. Cuadernos de Prehistoria de la Universidad de Granada, nº 10, Granada, pp. 335-366.
VALLE, F. (1985): La vegetación del Macizo Segura-Cazorla (Jaén). Anuario del Adelantamiento de Cazorla 26/7, pp. 113-128.