Observatorio del Patrimonio Histórico Español

OBSERVATORIO DEL PATRIMONIO HISTÓRICO ESPAÑOL

INTERVENCIÓN

 

CAIXA FORUM-MADRID

 

La Fundación la Caixa amplía su oferta cultural y social en la capital con la creación de Caixa Forum-Madrid. Junto al Museo del Prado, el Museo Thyssen-Bornemisza y el Museo Nacional Centro de Arte Reina Sofía, el nuevo espacio consolida el eje cultural del Paseo del Prado, planteado por el monarca Carlos III y actualmente objeto de un proyecto de reordenación urbanística a cargo de los arquitectos Alvaro Siza y Juan Miguel Hernández León.

La construcción de Caixa Forum-Madrid ha supuesto la transformación del edificio de la antigua estación eléctrica del Mediodia, uno de los pocos ejemplos de arquitectura industrial del s. XIX que permanecían en el casco antiguo. El proyecto, que conservará la fachada original de la antigua fábrica, está firmado por el estudio de arquitectos suizos Herzog y deMeuron.

 

Hasta el estado actual:

1857

Año de la licencia de la antigua fábrica de bujías La Estrella. Primer edificio dedicado a la actividad industrial situado en el solar.

1899

Proyecto del arquitecto Jesús Carrasco y Encina y el ingeniero José María Hernández para la construcción de una fábrica de electricidad a partir de la combustión de carbón que debía abastecer de energía a todo el sector sur del casco antiguo de Madrid.

1900

Licencia de construcción de la Central Eléctrica del Mediodia a nombre del empresario José Batlle.

1901

Se inaugura la central.

1997

Aprobación del PGOUM (Plan General de Ordenación Urbana de Madrid). En este plan se establece la protección en grado ambiental sobre las cuatro fachadas de ladrillo visto de la construcción

2001

El antiguo edificio de la central eléctrica es adquirido por la Fundación La Caixa. Su situación privilegiada frente al Jardín Botánico, próximo a tres de los museos más importantes en la capital influye en la operación. Tras la compra, los técnicos estudian el estado del edificio , "Existe un estado general de abandono y ruina que va paulatina e imparablemente afectando tanto al aspecto exterior como a la estabilidad", reza el informe realizado.

La Caixa encarga la restauración y ampliación del edificio al equipo de arquitectos suizos Herzog y deMeuron.

El estudio de arquitectos plantea a la entidad la posibilidad de adquirir los terrenos que ocupa una gasolinera y que conectan la antigua central con el Paseo del Prado para liberar el acceso al nuevo edificio.

2004

El Ayuntamiento de Madrid aprueba provisionalmente la modificación puntual del Plan General, con la que se fija la edificabilidad máxima de la parcela propiedad de La Caixa en 10500 m2 .

También recoge la transformación de los 497 m2 que ocupa la gasolinera del nº 36 del Paseo del Prado en 448 m2 de zona verde y 49 m2 de vía pública.

Esta modificación parcial representa el respaldo al proyecto de Caixa Forum-Madrid.

2008

Tras casi un siglo en desuso la antigua estación eléctrica del mediodia recupera su actividad convertida en un nuevo centro cultural y social (donde tendrán cabida dos galerías, un auditorio, una mediateca, salas polivalentes, talleres, almacén, librería y un restaurante) para la ciudad de Madrid.

 

El antiguo edificio:

La central estaba limitada por las calles Gobernador, Alameda, Cenicero y Almadén. La manzana contaba con una superficie de 1934 m2 . El edificio estaba compuesto por dos grandes naves paralelas de fábrica de ladrillo visto y fachadas de doble vertiente en los frentes de las calles Almadén y Gobernador. Contaba con cubiertas a dos aguas, de madera, sobre cerchas de acero roblonado, con un lucernario en la parte central que permitía la iluminación cenital. Una de las originalidades del edificio, conservada, es la resolución del remate de las fachadas principales.

 

El proyecto:

La estrategia de actuación se ha desarrollado sobre cuatro principios básicos:

1. Restauración de la envolvente de ladrillo de forma artesanal

2. Eliminación del zócalo perimetral de piedra de fábrica

3. Apertura de una nueva plaza pública con entrada por el paseo del Prado

4. Añadir volumetría.

El proyecto se completa con la creación de un muro vegetal, a cargo de Patrick Blanc junto a la medianera del número 34 del Paseo del Prado.

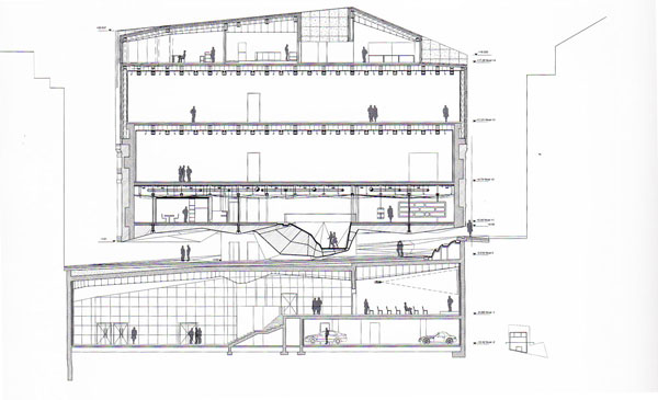
La intervención ha supuesto la ampliación de la superficie de la fábrica ( 2000 m2 ) hasta los 8000 m2 . El nuevo edificio dispone de siete niveles, dos de ellos bajo rasante. Sobre la planta baja a cielo cubierto y que da continuidad a la plaza pública, con entrada por el número 36 del Paseo del Prado se han construido cuatro nuevas plantas. El conjunto alcanza una altura total de casi 28 metros .

El diálogo arquitectónico que se debia producir entre el volumen existente y la nueva ampliación se resuelve a través de la contraposición de materiales (ladrillo cerámico-acero cortén) y geometrías ( composición clásica- planos, pliegues y texturas).

El programa que alberga el edificio se distribuye de la siguiente forma:

Nivel -2 Aparcamiento, acceso de obras de arte, foyer* y auditorio*
Nivel -1 Salas polivalentes, taller de conservación, almacén
Nivel 0 Plaza pública, acceso al centro
Nivel 1 Vestíbulo, cafetería, tienda-librería
Nivel +2 Sala de exposiciones
Nivel +3 Sala de exposiciones y mediateca
Nivel +4 Restaurante, oficinas
* El foyer y el auditorio ocuparán también parte del nivel -1

 

La actuación sobre la fachada de la antigua central eléctrica:

La protección en grado ambiental que el PGOUM establecía sobre las cuatro fachadas de ladrillo visto de la construcción obligó a la restauración "artesanal" de los 115.000 ladrillos que cubren el edificio, 40000 fueron sustituidos, y la fachada encintada. Sin embargo, se introdujeron algunos vanos para proporcionar entradas de luz natural que modifican en parte el aspecto general de la fachada. También se ha eliminado el zócalo de granito del antiguo edificio quedando el cerramiento suspendido.

[Cayetano Espigares Postigo. OPHE]